Student Housing
Apartment Details, Layouts, Photos and Services
In This Section
Student Housing
All apartments contain features such as air conditioning, electric heat, fully electric kitchen, refrigerator, and stove. WiFi and IPTV are provided by Xfinity. Local area telephone service is also provided to University Manor tenants. There is no charge for on-campus telephone service or local telephone service.
With the exception of the four-bedroom, all University Manor apartments are unfurnished. However, all apartments have been provided with draperies or miniblinds at all bedroom windows and dacron sheers in the living room; traverse rods for draperies are also provided in the living room.
The four-bedroom apartments are furnished with the following:
Bedrooms - mini blinds, wooden bed, mattress and wooden desk with chair.
Living Room - a three-cushion sofa, two matching sofa chairs, coffee table and two end tables with lamps.
Dining Room - table with four matching chairs.
Kitchen - refrigerator, range and microwave.
Floor Plans
The floor plan for a one-bedroom apartment in University Manor East.
The floor plan for a two-bedroom apartment in University Manor East.
The floor plan for a three-bedroom apartment in University Manor East.
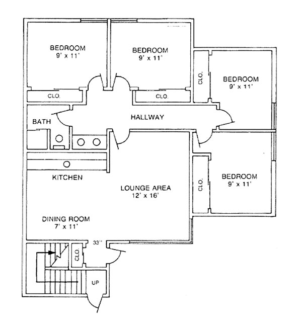
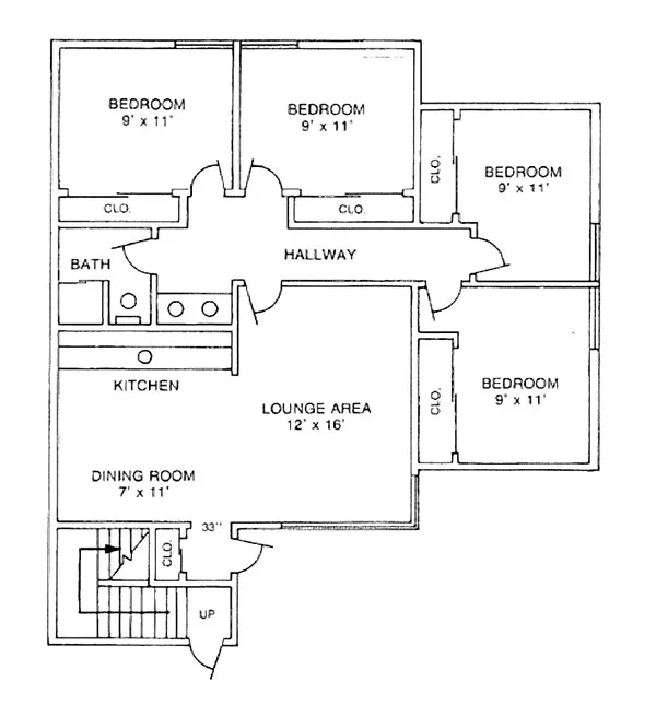
The floor plan for a four-bedroom apartment in University Manor West.
Photos of Two-Bedroom University Manor East Apartment
The living room and dining area are easily accessible from the kitchen by a pass-through window with available bar seating .
Galley kitchens come with an oven and stove top, refrigerator, sink and ample countertop and cabinet space.
Apartments include a full bathroom and laundry area with stackable washer and dryer.
All apartments come with an outdoor balcony or patio and an entryway coat closet.
Services and Other Details
Mail in University Manor East (UME) and University Manor West (UMW) will be delivered to a centralized "Mail Hub" located on the Southeast side of UME and in front of the Laundry building in UMW.
The Hershey branch of the United States Postal Service provides all mail service for University Manor Apartments and occupants. The Hershey Post Office is located at 151 W. Chocolate Avenue, Suite 145, Hershey, Pa. and their telephone number is 717-533-3356.
Packages
Amazon, FedEx, UPS, Etc.: The Housing Office will not accept any packages from these companies. All packages must be delivered to your individual apartment.
United States Postal Service: Tenants receiving oversized packages from the Postal Service MUST pick them up at the Hershey Post Office. The Housing Office will not accept packages from the United States Postal Service for tenants.
Change of Address
Change of Address forms can be found at moversguide.usps.com or requested from the Hershey Post Office (717-533-3356).
Please note that it is the tenant’s responsibility to ensure that the Post Office has their proper mailing address upon moving to and/or from University Manor. Housing staff will not assume the responsibility of forwarding your mail to you and all mail not forwarded will be returned to sender.
All garbage, refuse and rubbish shall be placed in the designated trash and recyclable receptacles supplied by, and located in, University Manor. Recyclable items are grouped into two categories, based on their means of disposal:
Commingled (these items can be mixed together)
Newspapers (these items should be disposed of separate from the commingled items)
Recycling Guidelines at University Manor
Never mix or lay loose newspapers with commingled items. Never mix plastic bags with commingled items or newspapers. Always place recyclable material in the appropriate recycle bin.
Commingled
Aluminum, steel, and bimetal cans (i.e. soup, vegetable, soda cans, etc.)
Glass bottles and jars (i.e. mayonnaise, canning, soda bottles, etc.)
Plastic containers/bottles #1 and #2 only (i.e. 2 liter soda bottles, milk, water jugs and plastic containers with #1 or #2 in the recycle triangle on the container.)
Newspapers
Newspapers without glossy inserts
Items NOT Considered Appropriate for Recycling
These items should be disposed of as trash in the appropriate containers.
Window glass or drinking glasses
Magazines, books or junk mail
Plastic bags
Plastic deli-type containers
Aluminum foil pans
Styrofoam
Metal clothes hangers, etc.
If a tenant locks themselves out of their apartment between 8 a.m. and 4:30 p.m., Monday through Friday, they can come to the Housing Office to sign out a key at no cost to them. The key must be returned within 24 hours. If the key is not returned within this time limit, the Housing Department will replace the entry door lock core. The tenant who lost their keys will be charged $100 to cover the cost of this replacement.
After 4:30 PM, Monday through Friday and weekends and holidays, tenants must contact Security at 717-531-8711 to gain access to their apartment.
A $15 service fee will be charged per event to tenants requiring Security to provide after-hours access to their apartment.
Only tenants whose names appear on the apartment lease will be granted access to by Housing and Security staff to Manor East and West apartments.
The Housing Office has vacuums available for tenant use. Tenants may borrow a vacuum for 24 hours without charge; however, there is a $2 late fee for every additional day the vacuum is not returned.
Cleaning Dryer Lint Traps
Each Maytag dryer is equipped with a lint trap located in the dryer door. The lint that accumulates in these traps should be removed each time the dryer is operated. Failure to remove the lint reduces the efficiency of the dryer and could present a fire hazard. Depicted below are step by step instructions for the removal, cleaning, and reinstallation of the dryers lint trap.
The lint trap is located within the dryer door. Remove the lint filter by depressing the latch on the right side.
Open and clean the lint filter.
Close and replace the lint filter.
Each Whirlpool dryer is equipped with a lint trap located inside on the rear wall of the dryer. The lint that accumulates in these traps should be removed each time the dryer is operated. Failure to remove the lint reduces the efficiency of the dryer and could present a fire hazard. Depicted below are step by step instructions for the removal, cleaning, and reinstallation of the dryers lint trap.
Step 1: The lint trap is located within the dryer on the back wall.
Step 2: Remove the lint filter by placing your fingers in the two holes and pulling.
Step 3: Open lint filter
Step 4: Remove lint
Step 5: Close lint filter
Step 6: Place filter back in the dryer







